LOCATION: – The property occupies a highly prominent position fronting both Brighton Road and Purley High Street forming the main commercial environment. Brighton Road is a bus route forming a link road between South Croydon and Purley and is a busy commuter route. The property benefits from vast quantities of passing vehicular traffic and a good deal of pedestrian flow generated by nearby multiples including William Hill, Dallas Chicken and Coughlan’s Bakery. There is short term parking on Brighton Road and public carparks nearby. The surrounding area is extremely densely populated and a reasonably affluent catchment area which the parade is able to service.
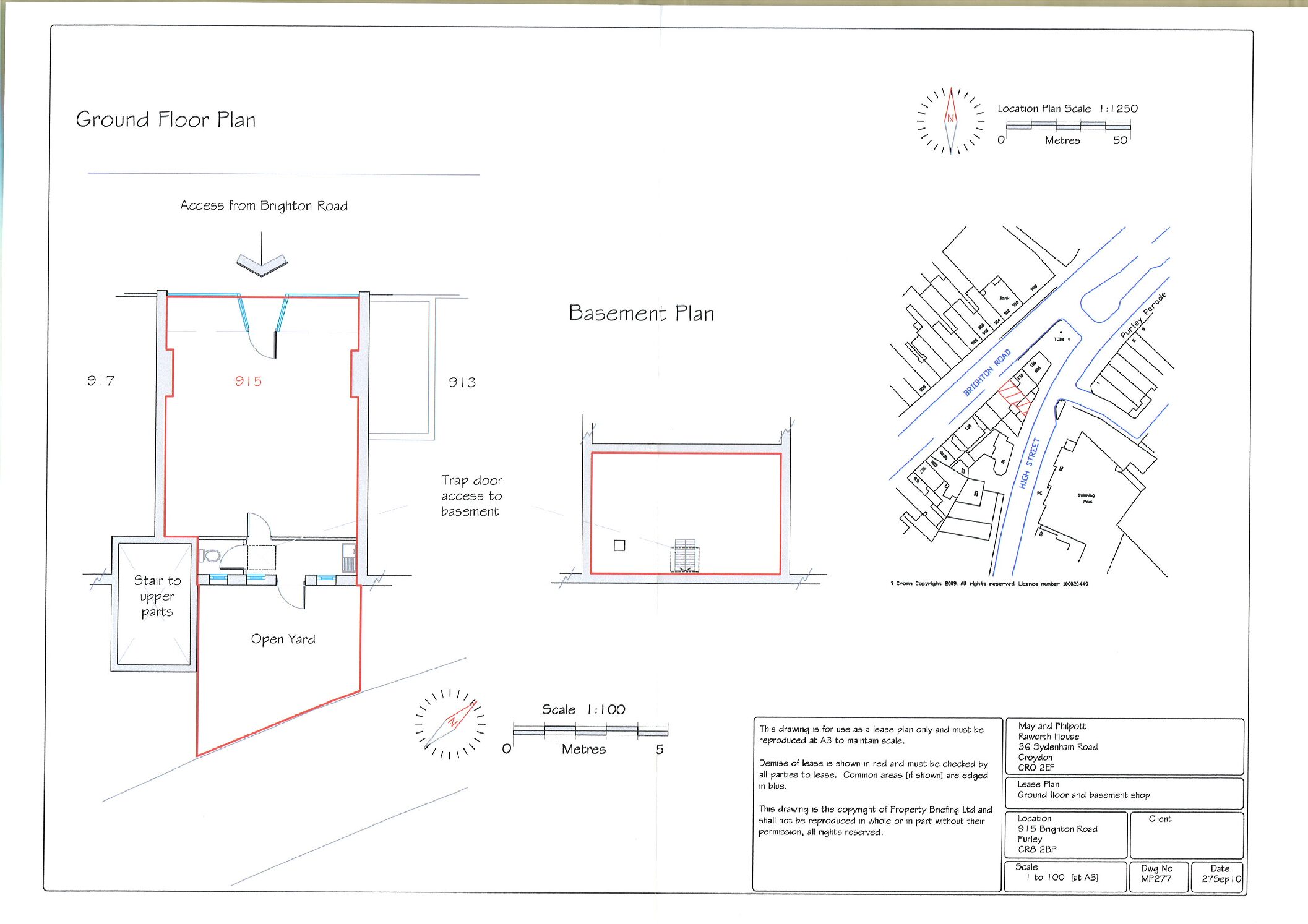
DESCRIPTION: – The property comprises a well fronted corner position on the east side of Brighton Road at its junction with the High Street. The property was most recently used an estate agents’ office, however, is considered suitable for a variety of uses. The property benefits male and female WC’s, a small open yard area to the rear, air conditioning (not tested) and a basement.
ACCOMMODATION: –
Gross frontage 23.782m (78ft approx.)
Ground floor 72.276m2 (778ft2)
Basement 33.44m2 (360ft2 approx.)
Male and female WCs
Kitchenette
Small yard
TENURE: – The property is to be offered by way of a new lease, the length of which is to be negotiated. We understand that the property will be available from November 2024.
USE/PLANNING: – We understand the property currently falls within Class E of the latest Town and Country Planning (Use Classes) Order and is considered suitable for a variety of trades. Interested parties should make enquiries of the local authority in respect of their intended use prior to offer
RENT: – An initial rent of £32,500 (thirty two thousand five hundred pounds) per annum exclusive is sought.
BUSINESS RATES: – The property has a rateable value of £24,750. Interested parties should contact the Local Authority to confirm the rates payable.
www.tax.service.gov.uk/business-rates-find/search
EPC RATING: – The property has an EPC rating of 88 within Band D.
VAT: – All rentals and capital figures quoted within these details are exclusive of VAT unless otherwise stated.
VIEWINGS: – Viewings by prior arrangement – please telephone 0208 681 2000.
Features
Download property details
Location
Brighton Road, Purley CR8 2BP, UK






