LOCATION: – The property is situated fronting Streatham High Road in a highly visible and prominent position. Streatham High Road forms part of the main A23 commuter road which is a bus route and the property benefits from vast quantities of passing vehicular & pedestrian traffic which is particularly heavy during the rush-hour periods. Local multiple traders include a Lidl directly opposite, B&Q, Holland and Barrett, Cash Convertors and Boots. Other traders include Subway, British Heart Foundation and Snappy Snaps. Streatham train station is just 0.4 miles away.
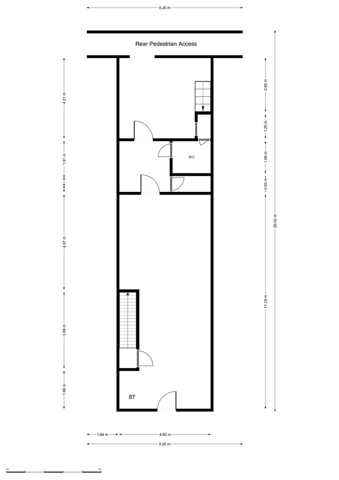
DESCRIPTION: – The property comprises a ground floor lock up shop with a highly visible frontage and a fully glazed. There is natural light from the rear. Services include air conditioning (not tested). There are suspended ceilings and an internal glazed partition as well as a full height basement partitioned as four separate ancillary spaces. The property is presented in modern condition and lends itself to a variety of uses having most recently been used as a recruitment office. There are male and female WC’s.
ACCOMMODATION:-
Gross frontage 10.4m (34ft) approx.
Internal width 4.75m (15ft) reducing to 3.762m (12ft) at 2m (6ft) widening again to 4.75m (15ft) at the rear approx.
Max depth 11.239m (37ft) approx.
Sales area 46.744m² (503ft²) approx.
Store 7.521m² (81ft²) approx.
Basement 55.466m² (597ft²) approx.
Male and female WCs
TENURE: – The property is to be offered by way of a new lease on full repairing and insuring terms, the length of which is to be negotiated.
USE/PLANNING: –We understand the property currently falls within Class E of the latest Town and Country Planning (Use Classes) Order and is considered suitable for a wide variety of operations.
RENT/PRICE: – An initial rent of £25,000 per annum exclusive is sought.
BUSINESS RATES: – The property will be re-rated for business rating purposes www.tax.service.gov.uk/business-rates-find/search
EPC RATING:- The property has an EPC rating of 69 within band C.
VAT: – All rental and capital figures quoted within these details are exclusive of VAT unless otherwise stated.
VIEWINGS: – Viewings by prior arrangement – please telephone 0208 681 2000.
Features
Download property details
Location
SW16 1PH







