LOCATION: – The property is situated fronting Streatham High Road in a highly visible and prominent position. Streatham High Road forms part of the main A23 commuter road which is a bus route and the property benefits from vast quantities of passing vehicular & pedestrian traffic which is particularly heavy during the rush-hour periods. Local multiple traders include a Lidl directly opposite, B&Q, Holland and Barrett, Cash Convertors and Boots. Other traders include Subway, British Heart Foundation and Snappy Snaps. Streatham train station is just 0.4 miles away.
DESCRIPTION: – The property a ground floor unit with a highly visible frontage and a fully glazed shopfront. There is natural light from the rear. There are suspended ceilings and an internal glazed partition. The property is presented in modern condition and lends itself to a variety of uses having most recently been used as a recruitment office.
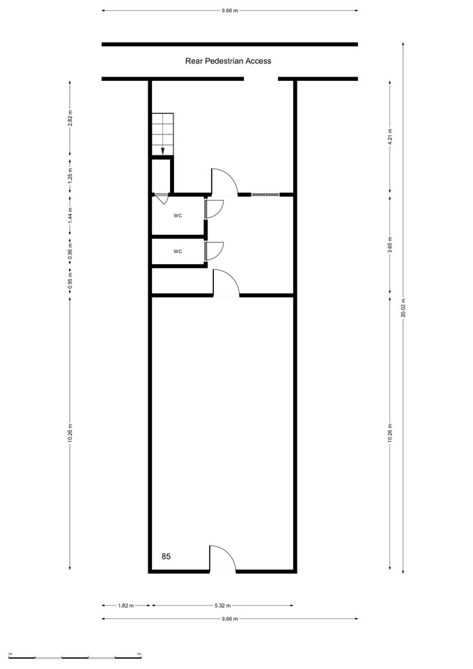
ACCOMMODATION:-
Gross frontage 10.4m (34ft) approx.
Internal width 5.184m (17ft) approx.
Max depth 13.966m (46ft) approx.
Sales Area 72.399 m² (779ft²) approx.
TENURE: – The property is to be offered by way of a new lease on full repairing and insuring terms, the length of which is to be negotiated.
USE/PLANNING: –We understand the property currently falls within Class E of the latest Town and Country Planning (Use Classes) Order and is considered suitable for a wide variety of operations.
RENT/PRICE: – An initial rent of £25,000 per annum exclusive is sought.
BUSINESS RATES: – The property will be re-rated. www.tax.service.gov.uk/business-rates-find/search
EPC RATING:- The property has an EPC rating of 69 within band C.
VAT: – All rental and capital figures quoted within these details are exclusive of VAT unless otherwise stated.
VIEWINGS: – Viewings by prior arrangement – please telephone 0208 681 2000.
Download property details
Location
SW16 1PH





