LOCATION: – The property is situated fronting Streatham High Road in a highly prominent position close to Streatham Hill Station and in a popular trading pitch. The property immediately adjoins a Tesco convenience store which enhances footfall to the locality and there is a Fitness First gymnasium directly opposite. There is also a pedestrian crossing immediately outside the subject unit which leads to further foot flow. Streatham High Road forms part of the main A23 commuter route and the property benefits from large volumes of passing vehicular traffic which is particularly heavy during the rush hour periods. The surrounding area is a densely populated catchment which the locality is able to service.
DESCRIPTION: – The property comprises a ground floor shop fronted premises formerly part of a banking hall. The property will have a new shopfront, newly installed WC and kitchen and a rear fire exit. The property is considered to be suitable for a variety of uses within Class E.
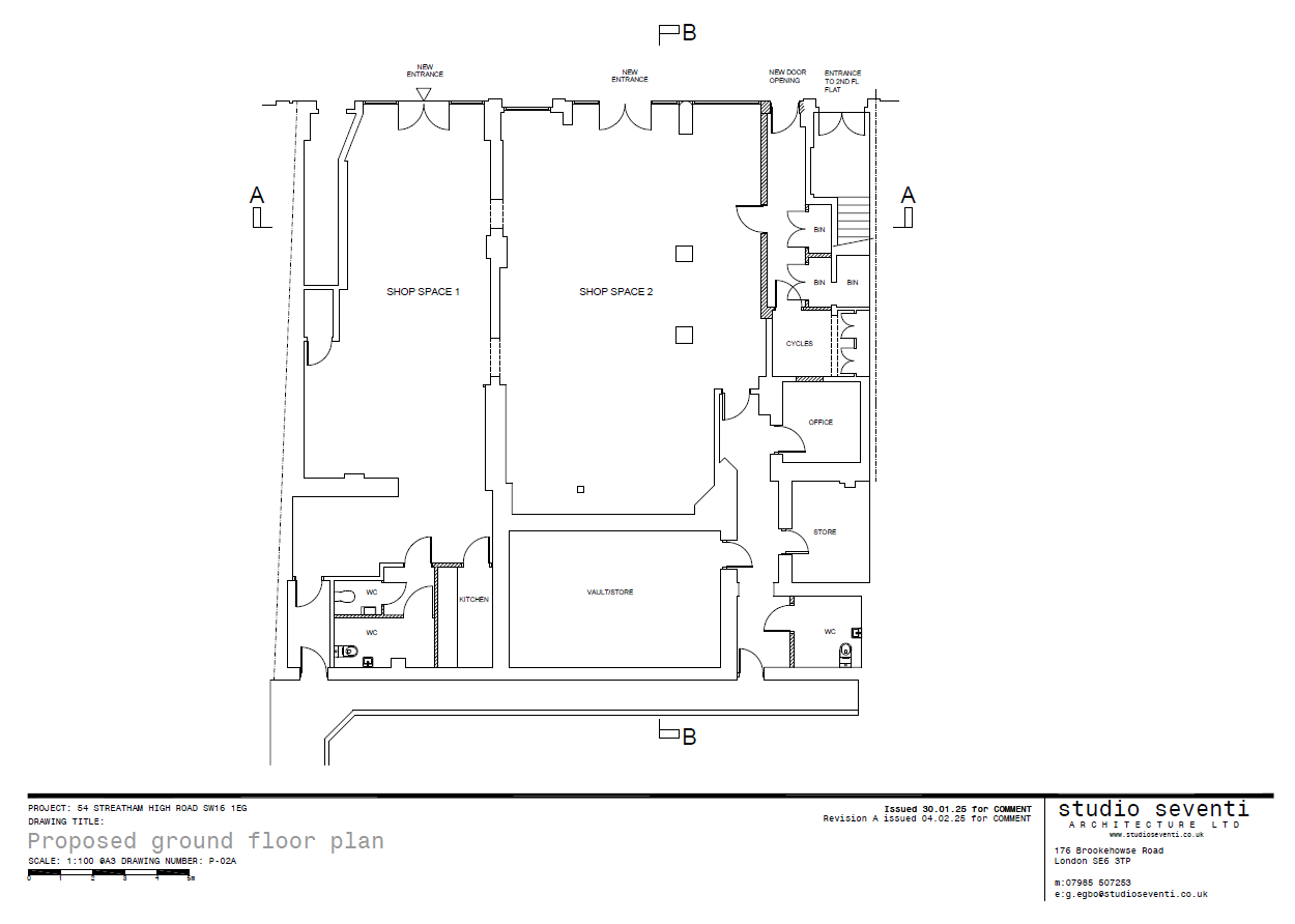
ACCOMMODATION: –
Gross frontage 4.5m
Internal width 3.8m widening to a maximum width of 6.2m.
Max shop depth 14.5m
Sales area 73.04m2 (786ft2 approx.)
Kitchenette 5.32m2 (57ft2 approx.)
2 x WCs
TENURE: – The property is to be offered by way of a new lease, the length of which is to be negotiated.
USE/PLANNING: – We understand the property was formerly occupied as a banking hall and will fall within Class E of the latest Town and Country Planning (Use Classes) Order. The property is considered suitable for a variety of uses.
Interested parties should make enquiries of the local authority in respect of their intended use prior to offer.
RENT/PRICE: – An initial rent of £27,500 (twenty-seven thousand five hundred pounds) per annum exclusive is sought.
BUSINESS RATES: – The property is to be re-assessed for business rates and will have a new rateable value assigned.
www.tax.service.gov.uk/business-rates-find/search
EPC RATING: – A new EPC has been commissioned, and the results will be made available upon receipt.
VAT: – We understand that the property is not currently elected to VAT.
VIEWINGS: –Viewings by prior arrangement – please telephone 0208 681 2000
Features
Download property details
Location
Streatham High Road, London SW16 1DA, UK



