LOCATION: – The property is situated fronting Rye Lane in the centre of Peckham, to the south of Peckham Rye station, and forming part of the main shopping area for Peckham. Rye Lane is a busy bus route and the property benefits from a good deal of pedestrian foot flow as the surrounding area is extremely densely populated. The property shares the locality with mainly specialist and local trades, but some multiples are situated nearby including Cake Box which is next door, Crisis, Barnard Marcus, and gym occupiers such as Anytime Fitness and F45.
DESCRIPTION: – The property comprises 2 lock-up shop units, each let and income producing, together with the ground rents from 3 flats above and a further peppercorn. The 2 shops are let to individual tenants and the opportunity offers a generous day 1 gross yield at asking.
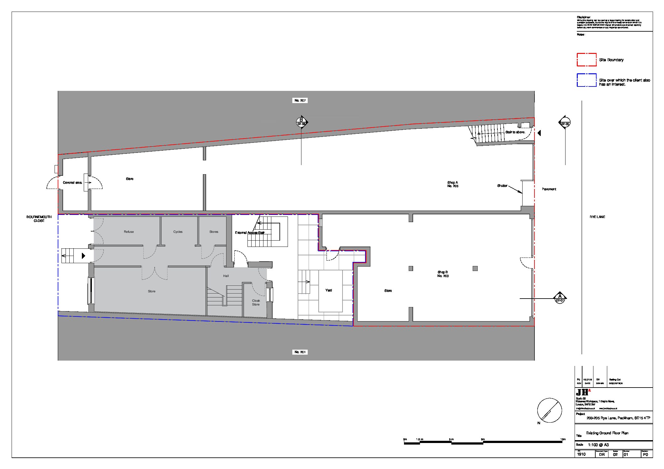
ACCOMMODATION: –
203 Rye Lane
Sales area 38.7m² (417ft²) approx.
Ground floor store 22.5m² (242ft²) approx.
Internal WC
205 Rye Lane
Sales area 84.60m² (910ft²) approx.
Store 20.30m² (219ft²) approx.
Small covered yard
Internal WC
Upper Floors
4 flats sold off on long leases.
USE/PLANNING: – We understand the ground floor elements fall within Class E (Retail / Office) of the latest Town and Country Planning (Use Classes) Order and currently operate as a retail barber shop and retail specialist food store. The upper parts are residential.
Interested parties should make enquiries of the local authority in respect of their intended use prior to offer.
TENURE: – The property is to be sold under a head lease for a term of 999 years from 1 January 2015 at a peppercorn ground rent.
The property is in turn subject to the following underleases:
203 Rye Lane
Let to a private individual for a term for 15 years from 13 October 2008. The passing rent is £22,000 pa exclusive.
205 Rye Lane
Let to a private individual for a term of 15 years from 19 July 2012. The current rent passing is £33,000 pa exclusive.
Flat 1
Sold under a lease for a term of 125 years from 1 January 2015 at a ground rent of £400 pa, doubling every 25 years.
Flat 2
Sold under a lease for a term of 125 years from 1 January 2025 at a ground rent of £130 pa, rising to £300 in 2056 and reverting to a peppercorn in 2089.
Flat 3
Sold under a lease for a term of 125 years from 1 January 2015 at a ground rent of £130 pa, rising to £300 in 2056 and reverting to a peppercorn in 2089.
Flat 4
Sold under a lease for a term of 150 years from 1 January 2025 at a peppercorn ground rent.
The total rent receivable is, therefore, £55,660 pa exclusive.
PRICE: – £600,000 (Six hundred thousand pounds) is sought for our client’s virtual freehold interest in the above. This shows an initial gross yield of 9.27%.
BUSINESS RATES: – The property has the following rateable values:
203 Rye Lane – £18,500.
205 Rye Lane – £23,250.
Enquiries should be made of the Valuation Office Agency in this regard.
www.tax.service.gov.uk/business-rates-find/search
EPC RATING: – The commercial element of the property has the following EPC ratings:
203 Rye Lane – 42 within Band B.
205 Rye Lane – 40 within Band B.
VAT: – We understand the property is not elected to VAT and, therefore, VAT is not to be charged on rents or the purchase price.
VIEWINGS: –Viewings by prior arrangement – please telephone 0208 681 2000.
Features
Download property details
Location
Rye Lane, London SE15 4TP, UK
