LOCATION: – The property is situated fronting Sydenham Road, close to its junction with Bedford Park, and very close to the centre of Croydon. The property is a few minutes’ walk from East Croydon station which provides access into Central London in well under 20 minutes and also easy access to London Gatwick and the South Coast. The property, which has dedicated parking front and rear, is within walking distance of the range of facilities provided by the centre of Croydon which is undergoing significant redevelopment. The new HMRC headquarters adjoining East Croydon station is just a few moments away and central Croydon has also seen significant residential development take place in recent years.
DESCRIPTION: – The property comprises a four-storey office building arranged over lower ground, ground, first and second floors, set behind a dedicated parking forecourt and with further parking to the rear. The property is constructed as mainly open plan office space but is currently partitioned internally to create a series of individual office rooms with storage areas in the lower ground floor and a staffroom/kitchen at ground floor. The property will make an ideal small headquarters in an extremely accessible location. The property is double glazed, alarmed, has CCTV and is partially air conditioned (no services tested).
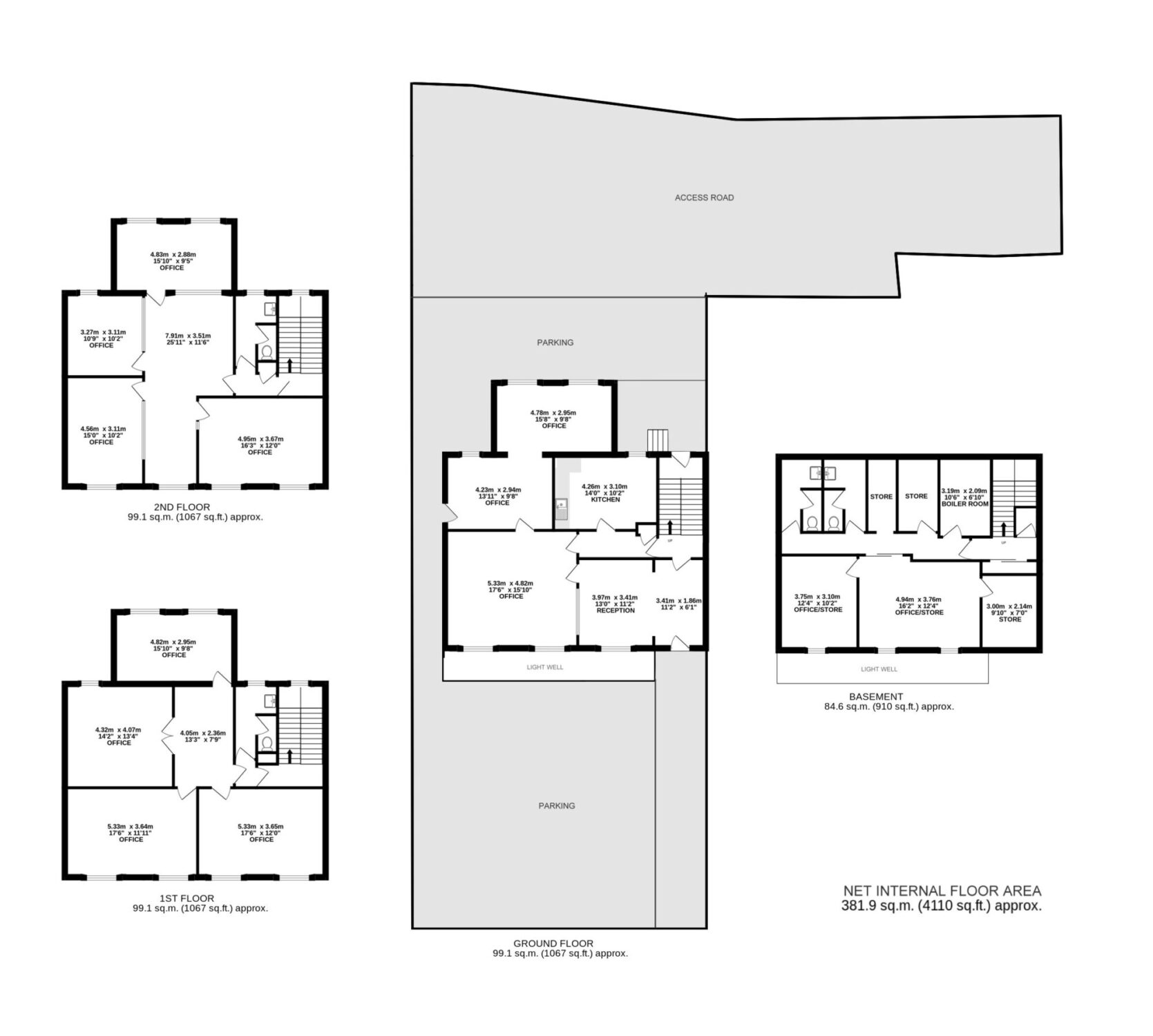
ACCOMMODATION: –
Lower Ground Floor
2 offices, 3 stores, boiler room, male and female WCs totalling 84.6m² (910ft²) approx.
Ground Floor
Entrance hall, reception, 3 offices, staff room/kitchen totalling 99.1m² (1,067ft²) approx.
First Floor
4 offices plus WC totalling 99.1m² (1,067ft²) approx.
Second Floor
4 offices plus WC totalling 99.1m² (1,067ft²) approx.
Total: 381.9m² (4,110ft²) approx.
Externally: – Deep forecourt with a crossover providing off street parking for several cars. Rear access road providing further parking for a number of other vehicles.
TENURE: – We understand the property is freehold and is sold with full vacant possession.
USE/PLANNING: – We understand the property currently falls within Class E (Retail / Office) of the current Town and Country Planning (Use Classes) Order and was most recently used as offices.
The property is considered to have potential for alternate uses subject to any necessary consents and may also have potential for residential conversion and possible extension at roof level.
Interested parties should make their own enquiries of the Local Planning Authority prior to offer.
PRICE: – Offers in excess of £1,250,000 (One million two hundred and fifty thousand pounds) are sought.
BUSINESS RATES: – The property has a current rateable value of £45,250. Interested parties should contact the Local Authority to confirm the business rates payable. www.tax.service.gov.uk/business-rates-find/search
EPC RATING: – 52 within band C
VAT: – We are advised that the property is not elected to VAT and VAT will not be chargeable on the purchase price.
VIEWINGS: – Viewings by prior arrangement – please telephone 0208 681 2000.
Features
Download property details
Location
Sydenham Road, Croydon CR0 2EF, UK






